Toggle menu
O projekte
PREDAJ APARTMÁNOV
Interiér
Foto
Lokalita
Kontakt
Slovenčina
Polski
Magyar
Úvod
Apartmán E1 – 5
Úvod
>
Apartmán E1 – 5
APARTMÁN E1 – č. 5
SPÄŤ NA VÝBER POZEMKU
VYBER SI SVOJ APARTMÁN
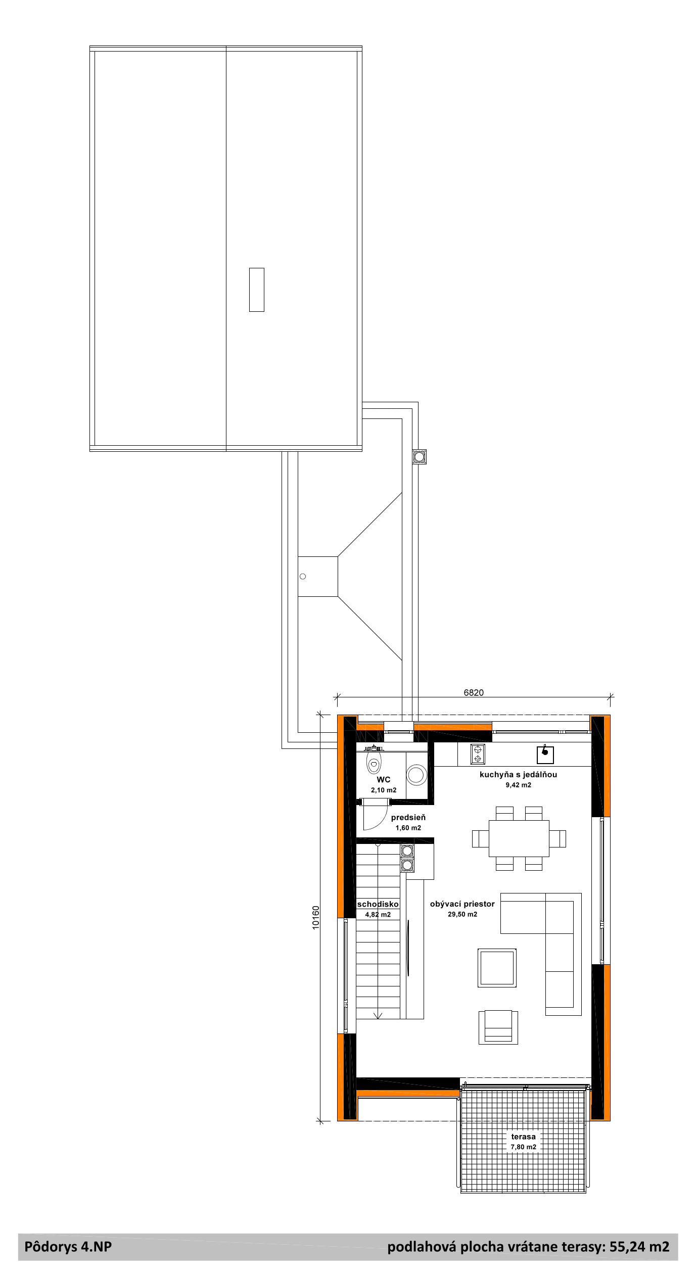
Obývací priestor
16,50 m²
Kuchyňa s jedálňou
9,05 m²
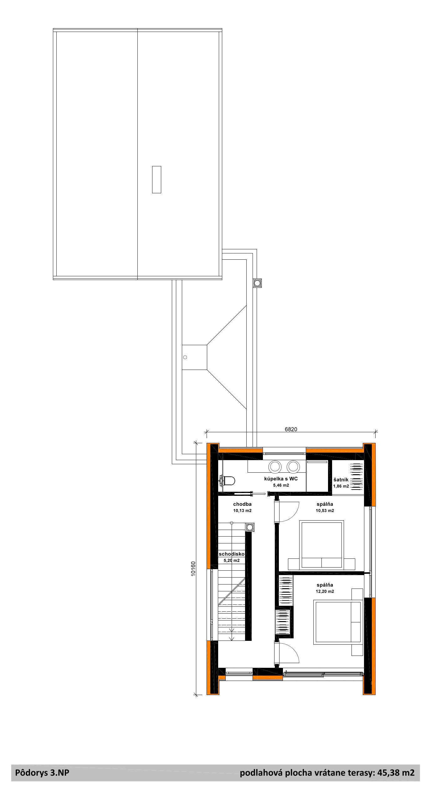
Spálňa
9 m²
Kúpelňa s WC
5,45 m²
Terasa
36,85 m²
Spolu
76,85 m²
Cena s DPH holobyt
184 263,- €
HOLOBYT ŠPECIFIKÁCIA
INTERIÉR DELUXE
ZÁKLADNÁ SPRÁVA
SPRÁVCOVSKÝ PROGRAM
VYBER SI SVOJ APARTMÁN
SPÄŤ NA VÝBER POZEMKU
REZERVÁCIA APARTMÁNU
Vaše meno a priezvisko
Telefónne číslo
Email
Prosím, odsúhlaste spracovanie Vašich osobných údajov v zmysle zákona č. 18/2018 Z.z.
Nezáväzná rezervácia apartmánu
Email